Maisons Jaoul- Le Corbusier
- ERICK PACHECO FIGUEROA

- Feb 5, 2021
- 1 min read
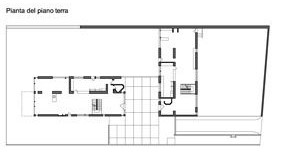
Le Corbusier siendo un arquitecto reconocido y valorado durante sus años de práctica, inicia su obra Maisons Jaoul como parte de su portafolio o catálogo arquitectónico. Este proyecto se ubica en Neuilly-sur-Seine, Francia y se construye en el año 1951. La idea que Le Corbusier plasma en esta obra se basa en dos volúmenes perpendiculares, de tres niveles cada uno y con una misma forma general que comparten una plaza o espacio abierto exterior. El acceso a esta plaza es por medio de una rampa, que al igual que otros proyectos de Le Corbusier, es un elemento arquitectónico de importancia y riqueza visual.
Desde el exterior se puede ver la construccion cruda de los materiales y su combinacion por medio de capas. Igualmente, es una estructura que se define por distintas fenestraciones con proporciones variadas. Así mismo, para Le Corbusier era importante destacar como enfoque visual la fachada frontal y su diseño de ventanas. En este caso, no es la excepción por la creación de un ventanal de rectángulos y cuadrados combinados.













Comments